



4.52 avis- Gîtes tout compris
1 / 23

2 / 23

3 / 23

4 / 23

5 / 23

6 / 23

7 / 23

8 / 23

Chambre 1
9 / 23

Lit 1 personne d'appoint, chambre communicante avec chambre 1
10 / 23

Lit 1 personne d'appoint, chambre communicante avec chambre 1
11 / 23

Salle d'eau - Chambre 1
12 / 23

Salle d'eau - Chambre 1
13 / 23

Chambre 2
14 / 23

Chambre 3 avec salle d'eau
15 / 23

Salle d'eau chambre 3
16 / 23

Chambre 3 avec salle d'eau
17 / 23

18 / 23

19 / 23

20 / 23

Portail entrée LES FILLATES, commun pour Gîte 17G16254 et 17G16255
21 / 23

22 / 23

Cour sécurisée avec possibilité de laisser les vélos.
23 / 23

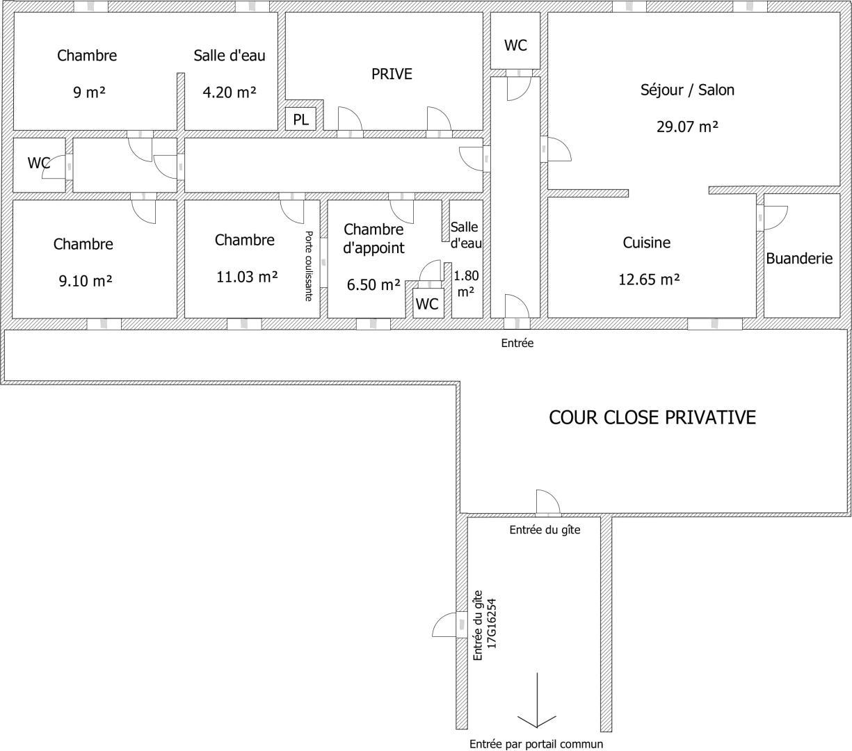
Plan de la propriété les FILLATTES
Description
Gîte de plain-pied mitoyen, rénové, au cœur du village de Saint Clément des Baleines, au sein d'une propriété composée de deux gîtes indépendants (17G16254).
Aménagement intérieur :
- Cuisine / séjour / salon.
- Buanderie.
- 4 chambres: Chambre 1 avec un lit 2 personnes (2 lits de 80X190 jumelés) et un lit 1 personne d'appoint avec salle d'eau et WC, Chambre 2 avec un lit 2 personnes (2 lits de 80x190 jumelés), Chambre 3 avec un lit 2 personnes (2 lits de 80x190 jumelés) avec salle d'eau.
- 2 WC indépendants.
Aménagement extérieur :
- Cour et terrasse closes privatives d'environ 35m².
- Salon de jardin avec plancha gaz.
- 4 Transats.
- Parkings à proximité (à 30m et 100m).
- Possibilité de stationner les vélos dans la cour close et sécurisée, commune avec autre gîte.
Fonctionnement :
- Ménage de départ et draps inclus (lits non faits à l'arrivée).
- Possibilité de location du linge de toilette.
- Commerces, loueurs de vélos et piste cyclable à 50m.
- Station de bus à 50m.
- Guinguette estivale ouverte le soir en juillet et août à 200m environ (nuisances sonores modérées).
- Toutes charges comprises.
- Possibilité de réserver le gîte en version 4 personnes (2 chambres) voir la référence 17G162559).
Annonce d'un particulier
-
Thématiques de l'hébergement
- Bambins
- Accès Internet
- Piscine sur place
Charges comprises
Numéro d'immatriculation : 173180001939T
La maison
Chambre 1 18 m² Rez-de-chaussée
Chambre triple
- 1 Lit double (140cm)
Chambre 2 9 m² Rez-de-chaussée
Chambre double avec SDE
- 1 Lit double (160cm ou +)
Chambre 3 9 m² Rez-de-chaussée
Chambre double côté jardin
- 1 Lit double (160cm ou +)
Equipements intérieurs
- Chambre au rdc
- Congélateur
- Equipement bébé
- Internet
- Lave linge
- Lave vaisselle
- Micro-ondes
- Plain pied
- Sèche-linge
- Télévision
- Chauffage électrique
Equipements extérieurs
- Barbecue
- Espace clos
- Espace privé
- Salon de jardin
- Terrasse
Services
À convenir avec le propriétaire avant votre arrivée et à lui régler sur place
- Draps fournis
- Ménage départ inclus
- Loc linge de toilette/pers.6.00 € (tarif par personne pour tout le séjour)
Loisirs
- Commerce
100 m
- Equitation
2.5 km
- Gare
44 km
- Golf
8.2 km
- Piscine
25 km
- Plage
700 m
- Pêche
1 km
- Restaurant
100 m
- Station thermale
75 km
- Tennis
2.3 km
- Thalassothérapie
3.4 km
- Vtt
50 m
Thématiques de votre séjour
- BambinsPour faciliter votre séjour, certains hébergements Gîtes de France sont spécialement équipés pour accueillir vos bébés. Vous trouverez sur place un équipement complet composé au minimum de : une baignoire bébé, un lit bébé, une table à langer ou matelas à langer, une chaise haute ou réhausseur.
- Accès InternetHébergements possédant un accès internet par WIFI.
- Piscine sur placeHébergements Gîtes de France avec piscine sur place. La notion de piscine commune ou de piscine privative est disponible dans le descriptif de l'hébergement.
- PêcheLes hébergements de Pêche disposent d'un local au rez-de-chaussée et d'un accès facile destiné à recevoir le matériel de pêche (bottes, cuissardes, cannes...) - un vivier pour la conservation des vifs si ce type de pêche est pratiqué - une carte des environs de l'hébergement avec mise en valeur des lieux de pêche. Les gîtes et les chambres d'hôtes de pêche sont situés à moins de 10 km d'un lieu de pêche et sont spécialement aménagés et équipés pour faciliter votre séjour pêche.
- MerTous les hébergements à moins de 10 km des plages
- VTT - CycloTous les hébergements à moins de 5 km des pistes cyclables
- EquitationTous les hébergements qui proposent l'activité équitation et tous ceux à moins de 5 km d'un centre équestre
- Bienvenue à la Ferme en Charente-MaritimeCritère Bienvenue à la Ferme
- Gîtes tout comprisAucun supplément pour ces gîtes : tout est compris ! Seule la taxe de séjour peut vous être facturée.
- Oenotourisme : Propriétaire passionnéLes locations de vacances qui vous sont proposées dans cette rubrique correspondent à une nouvelle 'qualification' de notre offre 'Gîtes de France'. Vous y serez accueillis par des propriétaires passionnés par le monde de la vigne et du vin. Ceux sont des propriétaires-amateurs éclairés, passionnés qui auront à cœur de vous faire découvrir durant votre séjour des dégustations, des visites, des conseils d'achats, de bons lieux de restauration…
- Hébergements avec piscineTous ces hébergements disposent d'une piscine sur place, privative ou à partager.
- Accueil véhicule électriqueBornes de recharge des véhicules életriques sur place ou à proximité de l'hébergement. Mise à disposition gratuite ou payante.
- le TELE-TRAVAILaménagement des gites pour permettre le TELE TRAVAIL : espace dédié et aéré avec table ou bureau, chaise confortable, accès INTERNET HAUT DEBIT, lampe et rallonge pour branchement outils informatiques
Localisation
Sites touristiques
Île de Ré
Phare des Baleines
Activités locales : Culminant à 57m, le Phare des Baleines offre un panorama à couper le souffle sur l'Île de Ré. Visitable toute l'année, vous découvrirez en compagnie de Jamy Gourmaud les évolutions et techniques des phares et balises maritimes.Lieux à visiter : A l’entrée, une librairie - boutique pour un large choix de souvenirs : livres, déco marine, posters, maquettes…Réserve naturelle de Lilleau des Niges
Activités locales : Espace préservé dans un milieu naturel, vous serez immergé dans la nature rétaise pour découvrir la richesse de sa faune et de sa flore à travers ses multiples visages : dunes, marais salants, forêt, villages, estran…Pôle-Nature - Écomusée du Marais Salant
Activités locales : L’écomusée vous propose de mars à novembre une découverte de l’histoire de la saliculture et la technique de production du marais salant rétais.
Tarifs & Disponibilités
- Semaine
- Week-end
- Mid-week
- Autres dates
- Avril 2026
- Mai 2026
Du 10/04/2026 au 17/04/2026 Déjà réservé | Du 11/04/2026 au 18/04/2026 Déjà réservé | Du 18/04/2026 au 25/04/2026 Déjà réservé | Du 25/04/2026 au 02/05/2026 Déjà réservé |
Le propriétaire
Chez le même propriétaire
Avis clients




4.52 avisJFP
Séjour en couple
du 23/02/2026 au 27/02/2026
Note globale : 




Publié le 19/03/2026
Je recommande sans hésiter
Je recommanderais cette location à un ami.




















J'ai été heureuse d'accueillir et de partager avec Mr et Mme P qui ont été très sympas et très respectueux du gîte Les Petites Fillattes.
Marie Marcelle, la propriétaire
Edualc
Séjour entre amis
du 06/10/2025 au 08/10/2025
Note globale : 




Publié le 21/10/2025
Un gîte très agréable
Dans une maison typique de l'île de Ré, vaste et bien équipé, un séjour très agréable.
Je recommanderais cette location à un ami.




















Votre séjour
Besoin d'aide pour réserver ?
ASSOCIATION GITES DE FRANCE CHARENTE-MARITIME









